ID CP2794730

Apartament 2 camere 60 mp cu geam la baie lângă Paradisul Acvatic

ID CP2794730

124,500 € TVA inclus

Apartament cu 2 camere de vânzare
Bartolomeu, Brasov
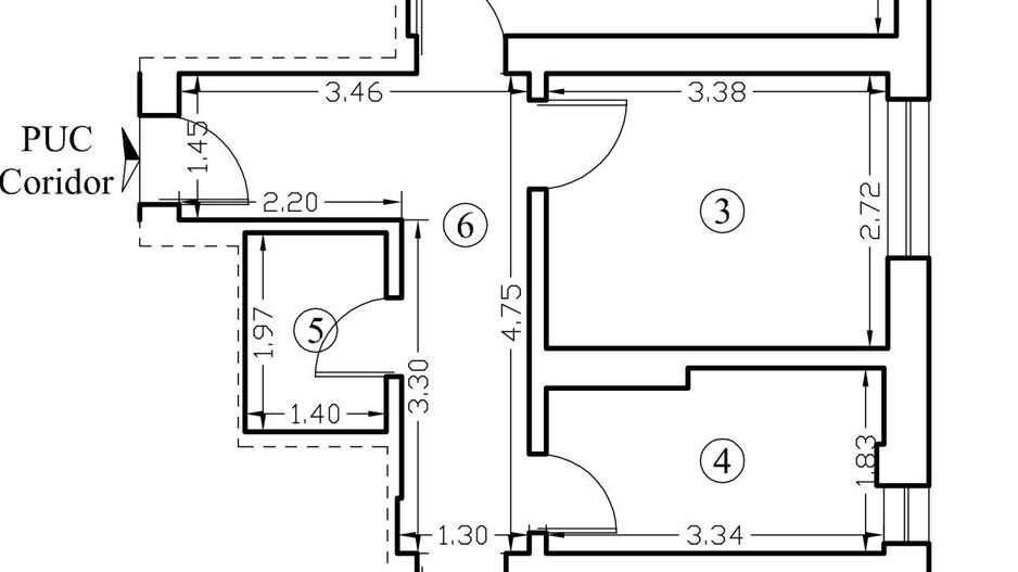
60 mp
2024

Descoperă confortul și rafinamentul unui apartament generos, cu o suprafață utilă de 60 mp, situat într-un imobil nou construit, în imediata apropiere a Paradisului Acvatic – o zonă apreciată pentru liniște, accesibilitate și aer modern.

Detalii și beneficii:

Centrala termică proprie și încălzire în pardoseală, pentru un confort termic superior în orice anotimp.

Cota parte din teren cu acces direct din bucătărie – ideală pentru momente de relaxare în aer liber sau pentru amenajarea unei mici grădini personale.

Totul este pregătit pentru viitorul proprietar – un spațiu modern, luminos și eficient, care oferă echilibrul perfect între funcționalitate și stil.

Preț de vânzare: 124.500 EURO (cu boxă și parcare incluse, T.V.A. inclus)

Pentru mai multe informații și programarea unei vizionări, nu ezitați să mă contactați!

Acest apartament poate fi noua dumneavoastră locuință – confortabilă, elegantă și excelent poziționată.

Citește mai mult

  • Tip apartament
    Apartament
  • Compartimentare
    Decomandat
  • Număr camere
    2
  • Dormitoare
    1
  • Număr bucătării
    1
  • Număr băi
    1
  • Geam la baie
    Da
  • Etaj
    Parter
  • Suprafață utilă
    60 mp
  • Suprafață construită
    76 mp
  • Disponibilitate
    Imediat
  • Confort
    1
  • Stare interior
    Nou
  • Anul finisării
    2024
  • Număr locuri parcare
    1
  • Imobil
    Bloc de apart.
  • Stadiu construcție
    Finisat
  • An construcție
    2024
  • Construcție nouă
    Da
  • Număr etaje clădire
    3

Facilități

Apă
Apometre
Boxă la subsol
Cadă
Canalizare
CATV
Centrală proprie
Contor electric
Contor gaz
Curent
Faianță
Ferestre PVC
Gaz
Geamuri tripan
Gresie
Iluminat stradal
Încălzire prin pardoseală
Internet
Izolație exterioară
Mijloace de transport în comun
Nemobilat
Parcare deschisă
Parchet
Străzi asfaltate
Telefon
Ușă intrare metal
Videointerfon
Vopsea lavabilă
Kostas Parusca - Kostas Imob
Kostas Parusca
Director vanzari

0758098907


Solicită chiar acum o vizionare
Telefon
Sună acum Solicită vizionare
Necesare:

Site-ul nu poate funcționa corect fără aceste cookie-uri. Vezi cookie-urile

Statistică:

Strângem statistici anonime despre voi, vizitatorii unici, pentru a vă îmbunătăți experiența dumneavoastră. Vezi cookie-urile

Marketing:

Pentru a ne promova mai eficient serviciile noastre, folosim cookies pentru a vă identifica și a vă oferi proprietăți și servicii personalizate. Vezi cookie-urile

Acest site folosește cookies, află detalii. Alege ce tipuri de cookies dorești să permitem: