ID CP2873434

Vânzare 2 camere în complexul rezidențial Vivamus Park Residence

ID CP2873434

123,000 €

Apartament cu 2 camere de vânzare
Rulmentul, Brasov
54 mp
2024

De vânzare apartament cu 2 camere în complexul rezidențial Vivamus Park Residence, o zonă modernă și liniștită aflată într-o urbanizare în continuă dezvoltare, cu acces rapid din Varianta și la doar câteva minute de Mall Coresi.

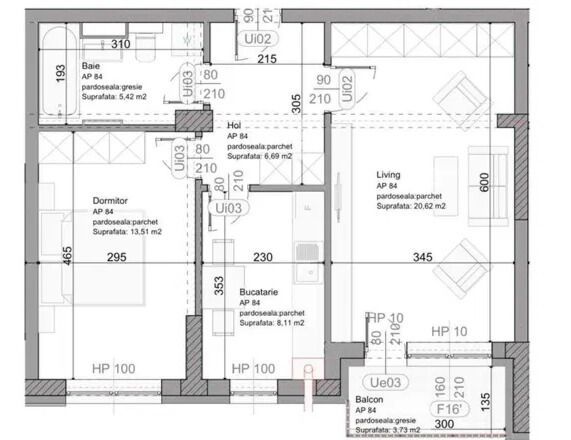
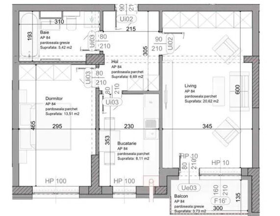
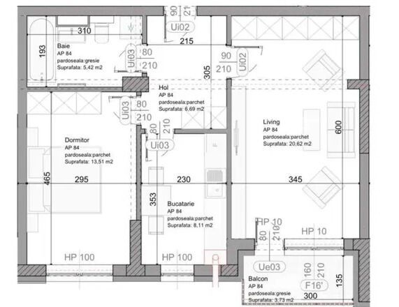
Proprietatea dispune de 54 mp utili la care se adaugă o terasă de 3,7 mp, fiind compartimentată eficient pentru a oferi confort și funcționalitate.

Apartamentul este structurat astfel:

Dormitor: 13,5 mp – spațios și luminos, ideal pentru un ambient relaxant

Living: 20,6 mp – cameră separată, perfectă pentru zonă de relaxare sau entertainment

Bucătărie: 8,1 mp – spațiu generos, separat, excelent pentru cei care gătesc frecvent

Baie: 5,4 mp – amenajată modern

Hol: 6,69 mp – distribuție eficientă

Terasă: 3,7 mp – loc ideal pentru un moment de relaxare în aer liber

În preț este inclus și un loc de parcare, un avantaj important în zonă.

Complexul oferă numeroase beneficii pentru locatari:

Clădire construită din cărămidă cu izolație din vată minerală bazaltică, inclusiv pereții despărțitori, ceea ce asigură un nivel ridicat de izolare fonică și termică, videointerfon

Camere de supraveghere pentru un plus de siguranță

Drum privat de acces cu barieră

Zonă de relaxare cu grătar destinată exclusiv locatarilor

Parc pentru copii

Teren de fotbal

Pistă de alergare

Evenimente exclusive organizate periodic de dezvoltator, menite să creeze o comunitate activă și unită

Un apartament ideal pentru cei care își doresc confort, liniște, siguranță și acces rapid către principalele puncte de interes ale orașului.

Citește mai mult

  • Tip apartament
    Apartament
  • Compartimentare
    Decomandat
  • Număr camere
    2
  • Dormitoare
    1
  • Număr bucătării
    1
  • Număr băi
    1
  • Etaj
    6
  • Suprafață utilă
    54 mp
  • Suprafață construită
    58 mp
  • Disponibilitate
    Imediat
  • Confort
    1
  • Stare interior
    Nou
  • Număr balcoane
    1
  • Număr locuri parcare
    1
  • Imobil
    Bloc de apart.
  • Stadiu construcție
    Finalizată
  • An construcție
    2024
  • Construcție nouă
    Da
  • Tip construcție
    Cărămidă
  • Număr etaje clădire
    6

Facilități

Apă
Apometre
Bucătărie închisă
Cadă
Calorifere
Canalizare
CATV
Centrală proprie
Contor electric
Contor gaz
Curent
Faianță
Ferestre PVC
Gaz
Geamuri tripan
Gresie
Iluminat stradal
Interfon
Internet
Izolație exterioară
Lift
Mijloace de transport în comun
Nemobilat
Parcare deschisă
Parchet
Străzi asfaltate
Telefon
Ușă intrare metal
Uși interior lemn
Vopsea lavabilă
Kostas Parusca - Kostas Imob
Kostas Parusca
Director vanzari

0758098907


Solicită chiar acum o vizionare
Telefon
Sună acum Solicită vizionare
Necesare:

Site-ul nu poate funcționa corect fără aceste cookie-uri. Vezi cookie-urile

Statistică:

Strângem statistici anonime despre voi, vizitatorii unici, pentru a vă îmbunătăți experiența dumneavoastră. Vezi cookie-urile

Marketing:

Pentru a ne promova mai eficient serviciile noastre, folosim cookies pentru a vă identifica și a vă oferi proprietăți și servicii personalizate. Vezi cookie-urile

Acest site folosește cookies, află detalii. Alege ce tipuri de cookies dorești să permitem: