ID CP3008071

Vânzare duplex luminos 4 camere cu grădină Bucureștii Noi Străulești

ID CP3008071

300,000 €

Apartament cu 4 camere de vânzare
Straulesti, Bucuresti
98 mp
2021

Un spațiu care îmbină confortul zilnic cu intimitatea fiecărui membru al familiei. Lumina sud-vestică inundă casa de la finalul dimineții până la apus, iar terasa rooftop și grădina creează locuri naturale pentru relaxare, lucru sau seri petrecute cu prietenii.

Date esențiale

Suprafață utilă: 98,5 mp

Suprafață teren: 104 mp

Suprafață construită: 137,9 mp

Terase + grădină: ~65 mp (include rooftop generos)

4 camere | 4 băi

2 locuri de parcare

An construcție: 2021

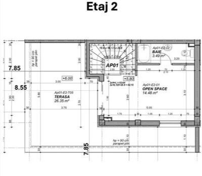
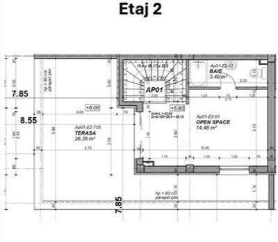
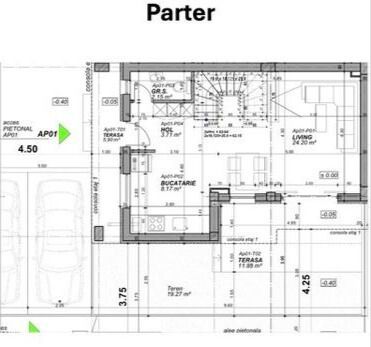
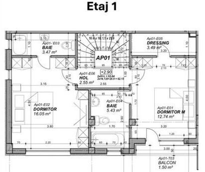
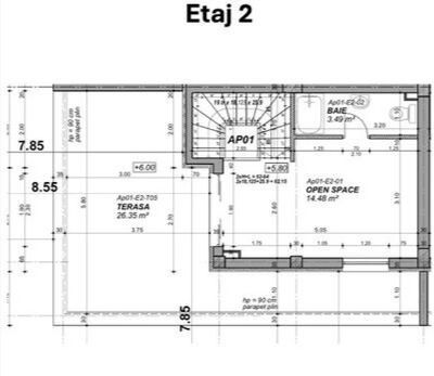
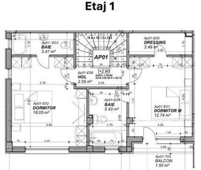
Compartimentare

Parter – living, dining și bucătărie open-space, baie, ieșire directă către terasă și grădină amenajată.

Etaj 1 – dormitor matrimonial cu dressing și baie proprie + dormitor secundar cu baie proprie.

Etaj 2 – birou / open-space (poate deveni dormitor), baie și terasă rooftop ideală pentru lounge sau dining în aer liber.

Finisaje & confort

Tâmplărie Salamander

Termoizolație exterioară (polistiren 10 cm)

Centrală termică proprie

Suprafețe vitrate mari, spații luminoase

Consum mediu gaz iarna: 200–300 mc/lună la ~23°C (istoric disponibil)

Curte & exterior

Grădină complet amenajată

Gazon cu sistem automat de irigare

Magazie exterioară pentru depozitare

Copaci pentru umbră naturală vara

Localizare

Situat în Bucureștii Noi – Doi Cocoși / Străulești, la 10–15 minute de mers pe jos de metrou Străulești.

Acces rapid către Colosseum, Kaufland, Mega Image, Lidl (~5 min), Băneasa Shopping City (~15 min) și zone verzi precum Mogoșoaia, Bazilescu sau Herăstrău.

Opțional pentru cumpărător

Sistem smart home Apple Home / HomeKit (control încălzire pe camere, geofencing, Tado, camere Netatmo, yală August)

Aer condiționat Daikin – 4 unități

Programator irigații

Electrocasnice bucătărie Franke / AEG / Samsung

Corpuri de iluminat

Pentru mai multe informații si vizionari, va stam la dispoziție.

Citește mai mult

  • Tip apartament
    Duplex
  • Compartimentare
    Decomandat
  • Număr camere
    4
  • Dormitoare
    3
  • Număr bucătării
    1
  • Număr băi
    4
  • Geam la baie
    Da
  • Etaj
    Parter
  • Suprafață utilă
    98 mp
  • Suprafață construită
    137 mp
  • Suprafață terasă
    104 mp
  • Suprafață curte
    65 mp
  • Disponibilitate
    Imediat
  • Orientare
    Sud-Vest
  • Confort
    1
  • Stare interior
    Nou
  • Număr balcoane
    1
  • Număr terase
    1
  • Număr locuri parcare
    2
  • Imobil
    Casă / Vilă
  • Stadiu construcție
    Finalizată
  • An construcție
    2021
  • Construcție nouă
    Da
  • Tip construcție
    Cărămidă
  • Număr etaje clădire
    2

Facilități

Aer condiționat
Apă
Apometre
Bucătărie deschisă
Cabină de duș
Cadă
Canalizare
CATV
Centrală proprie
Contor electric
Curent
Faianță
Ferestre PVC
Frigider
Geamuri tripan
Grădină proprie
Gresie
Hotă
Iluminat stradal
Izolație exterioară
Mașină de spălat rufe
Mijloace de transport în comun
Mobilat complet
Parcare deschisă
Podele granit
Străzi asfaltate
TV
Ușă intrare metal
Uși interior lemn
Vedere panoramică
Vopsea lavabilă
WC Serviciu
Zonă pentru barbeque
Kostas Parusca - Kostas Imob
Kostas Parusca
Director vanzari

0758098907


Solicită chiar acum o vizionare
Telefon
Sună acum Solicită vizionare
Necesare:

Site-ul nu poate funcționa corect fără aceste cookie-uri. Vezi cookie-urile

Statistică:

Strângem statistici anonime despre voi, vizitatorii unici, pentru a vă îmbunătăți experiența dumneavoastră. Vezi cookie-urile

Marketing:

Pentru a ne promova mai eficient serviciile noastre, folosim cookies pentru a vă identifica și a vă oferi proprietăți și servicii personalizate. Vezi cookie-urile

Acest site folosește cookies, află detalii. Alege ce tipuri de cookies dorești să permitem: